Die kleine Wohnung
Aus den alten Mägde- und Knechtekammern ist eine schöne kleine Wohnung entstanden.
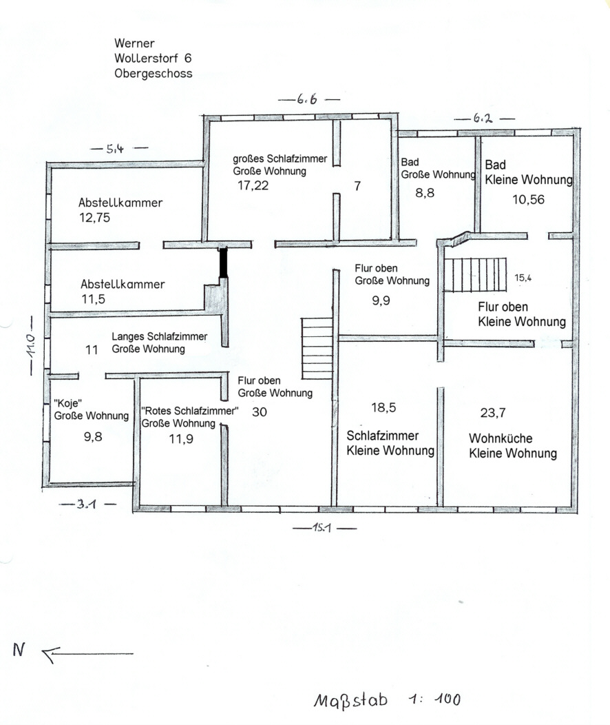
Sie hat 78 m², liegt im Obergeschoss des Hauses und ist über einen separaten Eingang
vom Flur im Ergeschoss erreichbar. Unten gibt es einen eigenen Flur, um Dinge abzustellen,
die nicht ins Obergeschoss müssen. Die originale Treppe wurde erhalten und ist recht steil.
Oben gibt es ein schönes, neues und geräumiges Bad, eine neue Wohnküche, ein großes Schlafzimmer und einen kleinen Flur.

Kleiner Flur oben
Das Schlafzimmer (18,7m²) hat ein 180x200 Doppelbett. Hier kann ein Zusatzbett aufgestellt werden. Die Schlafcouch in der Wohnküche lässt sich ausziehen.
Bei Bedarf kann das Gastzimmer dazugemietet werden.
In der Wohnküche (23,7m²) finden Sie einen ausziehbaren Esstisch, ein ausziehbares Sofa mit zwei Sesseln und einen Geschirrschrank. Die neue Küchenzeile wurde im März 2012 eingebaut.


Schlafzimmer und Wohnküche
Das Bad (10,6m²) hat eine Dusche, ein Waschbecken und ein WC.
Hier stehen auch Staubsauger und Putzmittel.


Bad in der kleinen Wohnung

